徐行镇小庙村规划有局部调整,
一起来看看~
为了更好地规范和指导徐行镇小庙乡村单元内相关公服设施的发展和建设,为政府部门的规划管理提供技术法规依据,嘉定区规划和自然资源局组织编制了《上海市嘉定区徐行镇小庙乡村单元(JDXHJY02)16-01地块控制性详细规划》。目前,该规划已由上海市人民政府以沪府规划[2022]307号文件批复。现进行批后公示。
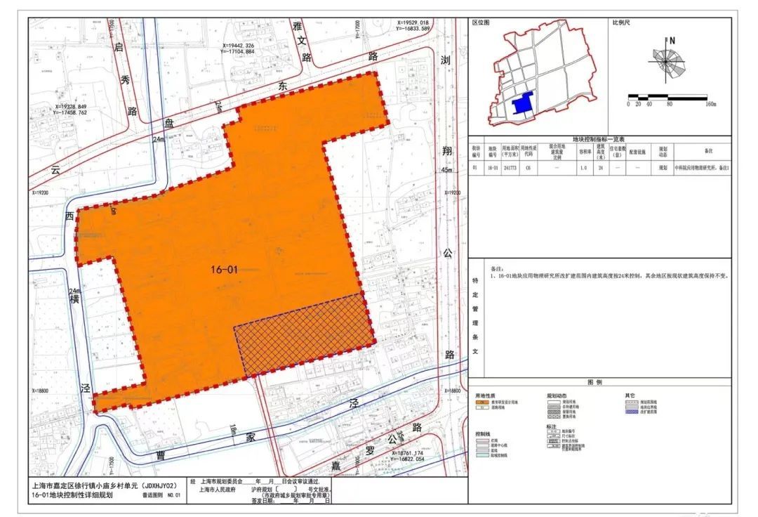
规划范围
本次规划涉及的16-01地块位于嘉定区徐行镇小庙乡村单元(JDXHJY02),是现中科院应用物理研究所地块,位于嘉罗公路以北、浏翔公路以西,毗邻徐行镇区,总面积约24.2公顷。
主要规划内容
(1)土地使用:根据权籍边界及周边河道蓝线、道路红线的控制要求,优化16-01地块的用地边界,地块用地面积约241773平方米,用地性质为教育科研设计用地(C6)。
(2)开发强度:规划16-01地块(C6)容积率1.0控制,符合徐行新市镇总规中的一级强度分区要求。
(3)建筑高度:结合研究所拟扩建研发功能需求,规划于16-01地块内划定改扩建范围,考虑到研究所改扩建的相关科研功能对建筑内部净空及整体建筑高度均有硬性需求,本次规划16-01地块改扩建范围内建筑高度按24米控制,其余地区按现状建筑高度保持不变。

(来源:嘉定区规划资源局、上海嘉定)