外冈镇郊野单元01-01地块征收安置房项目设计方案公示中,
总建筑面积超35万平方米,
住宅2940户,机动车停车位3096个,
设综合服务楼、社区宴会、菜市场等配套,
一起来看看~
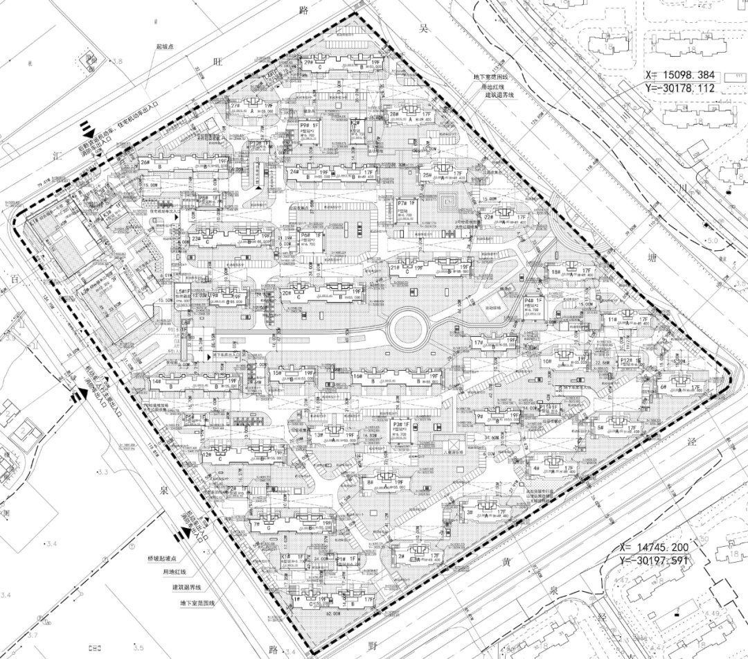
该项目位于嘉定区外冈镇,东至吴塘,南至野黄泾,西至百泉路,北至汇旺路。总用地面积131951平方米。

本项目由上海国际汽车城(集团)有限公司投资建设,总建筑面积359752平方米,其中计容建筑面积为237512平方米。

备注:经济技术指标以最终核发的建设工程规划许可证为准,绿化景观、内部交通道路以最终批准的图纸为准。
通讯员:嘉小规
编辑:陆雨沁