骄阳似火,激动人心
在这个努力奋斗挥洒汗水的季节
南桥镇又有“大事发生”!
联东U谷
上海南桥创新科技园


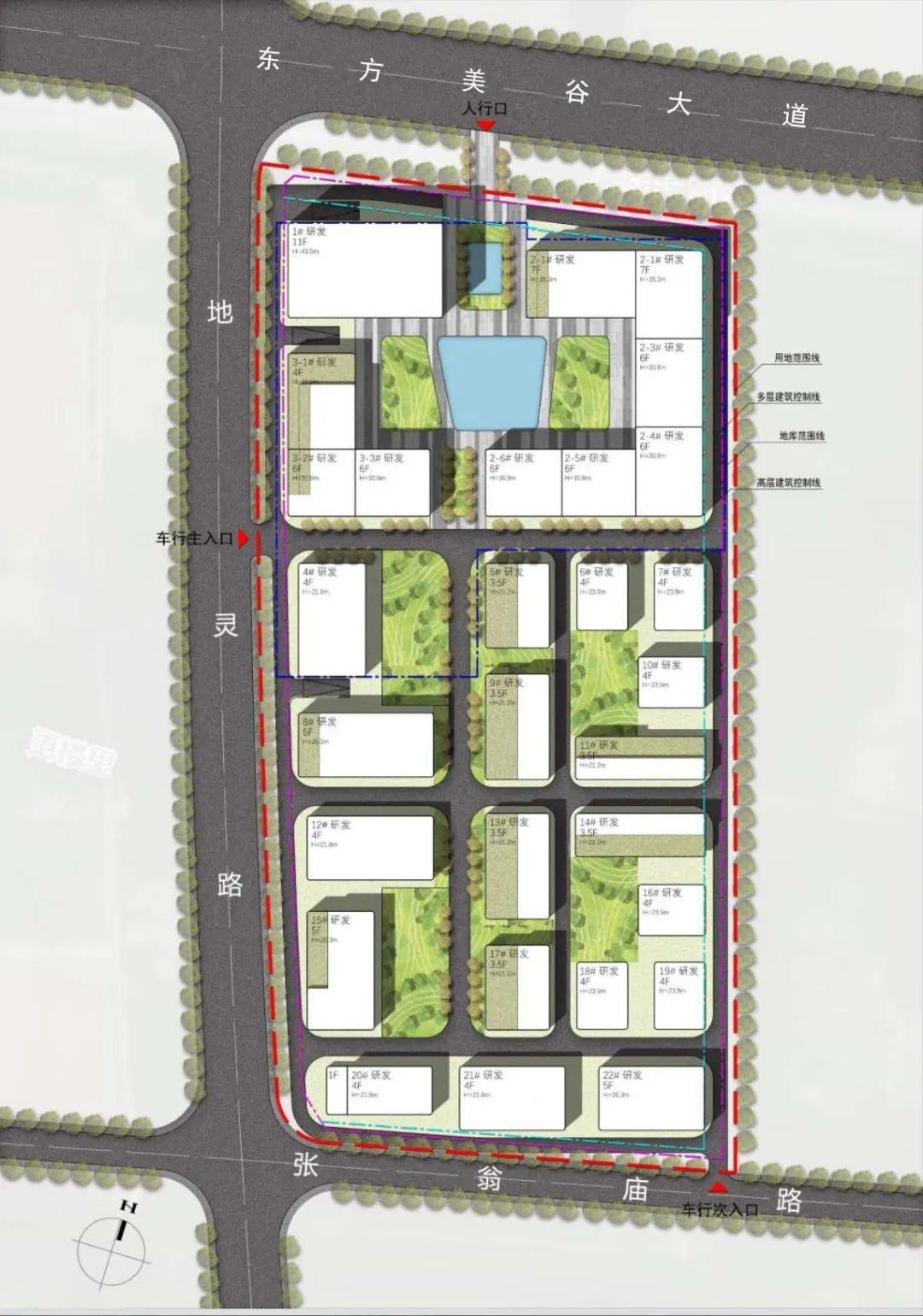
联东U谷·上海南桥创新科技园项目,位于奉贤区南桥镇江海园区,用地面积约67072㎡,总建筑面积163876㎡。充分结合奉贤“1+1+X”产业发展方向,以美丽健康、智能制造、生物医疗等产业为主导,重点打造以创新智能产业为核心,以科技成果转化为主要功能的生态科技型创新园区。以东方美谷大道创新走廊建设为核心,充分发挥地域优势,联动各区,共同打造科创智造引擎,形成高端产业链发展集群。


建筑设计传承历史文化内核,用现代的手法对江南传统空间格局抽象表达,充分发扬传统文化属性。由产业大厦、分层办公楼和分栋办公楼组成一座花园式产业园区。园区内主要以研发、办公、中试和轻加工为主要功能,配套以会议、食堂、社区商业和公共展厅为辅助功能,为入驻园区的企业进行一站式服务,打造时尚又富有文化的园区,塑造有竞争力的复合产业社区。


该项目总投资额10亿,其中由南桥镇集体企业南超公司入股30%,与联东集团共同开发建设。江海园区是奉贤最早成立的乡镇工业区之一,作为上海市首批六个转型试点园区之一,园区现正处于转型迈进的关键时期。项目建设完成后,将成为园区一个新的经济增长点,更好、更快、更有力地推动南桥经济发展。

联东集团创立于1991 年,是一家以产业园区运营服务与金融投资为一体的的集团化公司,历经30年成为全国最具影响力的产业服务平台之一。独创产业聚合“U谷模式”,以“联东U谷”为品牌,目前在全国76座城市投资运营产业园区超过370个,引进、服务新兴制造业和科技型企业超过15000家,是行业内真正实现全国化布局的领军产业平台。自2012年以来,连续 11年在全国产业园区运营企业中排名第一。


下一步,南桥镇将与联东集团将密切配合,科学组织,精心施工,建立招商“金门槛”,实现园区“产业有方向、产品有形象、客户有质量、税收有保障”的目标,打造“五好”示范园区,吸引更多优质企业落户。
