
好消息!洋泾街道又有小区拟加装电梯啦~苗圃路112弄(洋泾花园城)32、33、34号单元楼将各加装电梯一部,更多详情一起来看看吧↓

苗圃路112弄32号单元楼
建设单位
上海市浦东新区洋泾花园城业主委员会
项目名称
浦东新区苗圃路112弄32号单元楼既有多层住宅增设电梯工程
项目公示图

(点击可查看大图)
建设用地性质:既有多层住宅加装电梯
建设工程性质:附属设施
项目介绍
本项目(既有多层住宅)位于上海市浦东新区苗圃路112弄32号
原建筑层数:6层
原建筑高度:19.10米
居民户数:一梯两户,共10户(一层为商铺)
建设内容
1.在本单元楼梯间北侧外部加装无机房电梯一部(设5站,半层入户)。
2.加装由电梯至休息平台之间的封闭连廊。
3.加装底层出入口无障碍坡道。
主要经济技术指标
新增电梯占地面积:8.74平方米
新增建筑面积:53.50平方米
井道高度:19.10米
建筑层数:5层
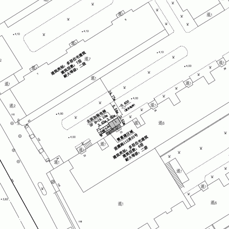
苗圃路112弄33号单元楼
建设单位
上海市浦东新区洋泾花园城业主委员会
项目名称
浦东新区苗圃路112弄33号单元楼既有多层住宅增设电梯工程
项目公示图

(点击可查看大图)
建设用地性质:既有多层住宅加装电梯
建设工程性质:附属设施
项目介绍
本项目(既有多层住宅)位于上海市浦东新区苗圃路112弄33号
原建筑层数:6层
原建筑高度:19.10米
居民户数:一梯两户,共10户(一层为商铺)
建设内容
1.在本单元楼梯间北侧外部加装无机房电梯一部(设5站,半层入户)。
2.加装由电梯至休息平台之间的封闭连廊。
3.加装底层出入口无障碍坡道。
主要经济技术指标
新增电梯占地面积:8.74平方米
新增建筑面积:53.50平方米
井道高度:19.10米
建筑层数:5层
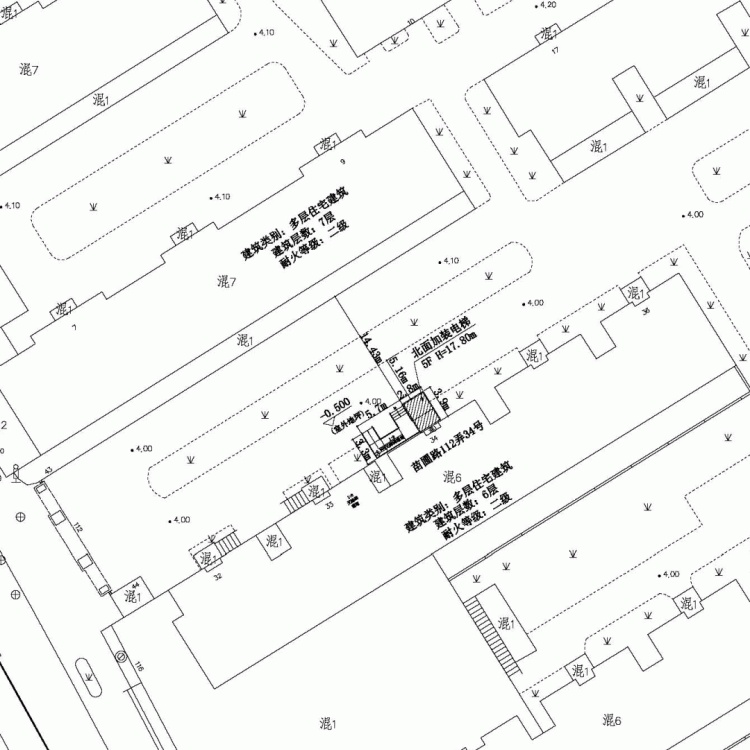
苗圃路112弄34号单元楼
建设单位
上海市浦东新区洋泾花园城业主委员会
项目名称
浦东新区苗圃路112弄34号单元楼既有多层住宅增设电梯工程
项目公示图

(点击可查看大图)
建设用地性质:既有多层住宅加装电梯
建设工程性质:附属设施
项目介绍
本项目(既有多层住宅)位于上海市浦东新区苗圃路112弄34号
原建筑层数:6层
原建筑高度:17.80米
居民户数:一梯两户,共12户
建设内容
1.在本单元楼梯间北侧外部加装无机房电梯一部(设5站,半层入户)。
2.加装由电梯至休息平台之间的封闭连廊。
3.加装底层出入口无障碍坡道。
主要经济技术指标
新增电梯占地面积:10.89平方米
新增建筑面积:55.61平方米
井道高度:17.80米
建筑层数:5层
意见反馈
反馈意见截止日期:2022年6月22日前,信件以寄出邮戳为准。
本次公示采取书面信函方式听取公众意见
反馈意见的邮寄地址:浦东新区巨野路219号洋泾街道办事处1号楼418室,邮编:200135,并请在信函封面注明“加装电梯方案公示意见”。
责任编辑 杨林雨
来源 浦东发布