编者按
新时代发展背景下,宝山区南大地区将由传统工业区转型成为绿色智慧融合发展的创新城区。本次规划修编根据城区定位发展新要求,充分发挥项目生态环境和空间资源的优势,全方位改善交通条件,探索适应高新产业发展的创新城区空间结构新模式,总结形成了规划编制、规划管理、规划实施等方面的经验,为上海乃至全国的重点产业转型区域有机更新提供借鉴。
一、南大地区的前世今生
南大地区位于上海中心城西北部,地处宝山、普陀、嘉定三区交界的特殊区位,总用地面积约6.3平方公里。过去,这里是承接上海中心城化工、皮革产业转移的基地,曾被作为中心城建设敏感区长期控制。2009年,南大地区由市政府列入上海第四轮环保三年行动计划,开展产业转移和腾挪,并确定了“生态优先、环境重塑、综合功能”的规划理念。在此背景下,2011年和2012年分别编制了《祁连敏感区结构规划》与《上海市宝山区W121301 单元(祁连敏感区)控制性详细规划》,以城市安全和生态环境修复为目标,统筹协调环境、产业和交通的综合发展,构筑中心城西北的重要绿化通廊,是生态型的城市综合功能区,体现了城市门户新形象。
2018年,市委、市政府进一步将南大地区列为“3+5+X”重点转型地区之一,同时依据《上海市城市总体规划(2017-2035年)》和全市重点产业发展要求,南大地区重点承担车联网、智能服务机器人等高端创新产业,并联动周边打造上海中心城西北部的科创引擎。

图1 历次规划编制情况
南大地区拥有生态环境和空间资源优势,是中心城“不可多得的大衣料子”。如何发挥自身优势,为城区发展助力,是本次规划修编的重点。首先,在保证绿地规模的基础上开展城市功能建设,强调最大程度地促进生态空间和城市空间融合;其次,解决南大及周边地区产业竞争力不强、创新能力不足等瓶颈难题;第三,改善城区环境,塑造城市形象,形成辐射西北的公共服务中心;最后,适应新一代信息技术的发展,探索形成上海人工智能城市建设和运营的技术框架。

图2 开发动态图
本次规划构建高质量发展新背景下的规划工作新模式,以更高的编制标准、更弹性的管控手段、更融合的工作方式,形成涵盖规划编制、规划管理、规划实施的全新框架和内容要求。
二、转型路径与规划策略
针对规划发展目标,聚焦城区发展瓶颈难题,编制工作团队秉承“精心规划”的理念,积极研究新时代发展背景的高标准要求,数次进驻现场进行排摸和总结,并联合城市设计和多个条线的工作团队,依托产业策划、智能城市和综合交通等多个专项规划的支撑,最终形成规划成果。
一是立足新发展背景,落实总体规划要求,明确南大地区发展定位。南大地区凭借厚积薄发的生态环境、交通条件和空间资源优势,成为上海实现创新发展的重要战略机遇区。本次规划修编明确南大地区将建设成为全球领先、国内典范的生态、活力、智慧的创新城区。

图3 城市设计总平面图
二是落实城市结构绿地管控,优化空间布局,塑造高品质城市空间。南大地区长期作为生态敏感区进行控制,自2009年启动环境综合整治以来,生态结构已基本形成。上海2035总体规划将外环绿带和沪嘉生态廊道划定为桃浦楔形绿地,成为南大地区重要的生态基底。本次规划对于城市绿地开展细分研究,从如何充分利用生态规模优势来提升城区形象和综合效益着手,坚持生态锚固与土地集约互为支撑,将生态优势转化为发展优势,强化生态空间的穿插与渗透、产业组团的集约和紧凑,构建疏密有致的空间格局,形成“组团式、多中心、网络化”的城市空间结构。

图4 规划结构图
三是探索适合新兴产业发展的产业城区空间模式和配套要求。根据国际经验,智能、创新等新兴产业一般在一定空间内集中核心企业、上下游延伸企业、专业服务配套等功能,企业需求多样化、体量差异化、发展不确定性更加明显。本次规划提出符合产业集群发展规律的组团式、模块化城市空间,并可通过滚动开发的模式,有效控制开发成本并优化运营管理。同时面对南大地区未来创新企业和创新人才的需求,提出“双配套”的服务设施体系和针对性的居住服务需求,塑造产城融合、富有活力的城市空间。

图5 多样化产业建筑空间产品模式图
四是探索高质量发展背景下规划土地全过程管理的新模式。结合开发实施机制,形成更加注重与实施对接的规划管理模式,分区分级开展城市设计规划管理,确保规划理念的落地,同时为开发建设留有足够的弹性。强化实施监督和动态维护,依托智能大脑数据中心建立信息管理平台,提供更加精准、更高质量的评估与规划调整。
三、规划探索
本次规划充分研究地区特点,基于地区发展需求,针对生态绿化空间、城市建设空间、产业发展空间、活力城区配套和智慧城市建设等提出规划引导策略,并对上海其他重点产业片区的发展提供规划编制借鉴。
探索1:最大化发挥结构绿地的生态效应,树立城绿交融的生态标杆。
依托楔形绿地形成的生态基底,是南大地区的重要特征与优势。本次规划充分发挥楔形绿地的生态辐射与服务功能,使生态全面融入城市格局,提升生态空间的显示度与感受度,将生态优势转化为发展优势,建成空间充裕、效益突出的生态城区标杆。强调维护地区生态基底,确保原规划确定的水绿生态空间规模不减少。

图6 绿化布局调整对比图
在此基础上,进一步强化生态的链接、渗透,锚固外环绿带、沪嘉绿带结构,向东连接大场楔形绿地,向南对接桃浦中央绿地,共同织就区域生态网络系统。强化生态空间向城区的穿插渗透,梳理走马塘、陈家江蓝绿网络,打造组团间指状绿廊,形成城市风道,使生态空间向城市内部深度渗透,构建主次分明、服务均好的生态空间。

图7 绿地导引规划图
探索2:营造活跃的产业生态环境,打造各类要素汇聚的创新引擎。
创新能力不足,是制约南大及周边地区产业竞争力提升的关键瓶颈。本次规划聚焦战略性新兴产业与创新研发能力,营造吸引汇聚创新要素的城区环境,并加强与桃浦的联动与错位发展,打造“南大-桃浦”的创新引擎,形成“创新-生产”产业生态网络,引领区域产业整体转型升级。
本次规划强调把组团作为产业空间规划建设的基本单元,使相关产业功能相对集聚、公共服务配套相对集中、滚动开发风险可控。规划以结构性绿地、城市干道为边界,划分为6个产业组团。组团规模衔接产业链培育的基本需求,用地面积约10-20公顷,建筑面积约20-50万平方米。

图8 产业组团分布图
明确每个组团内建筑空间种类多样,提供不同体量、形式、位置的多样化产业空间,适应不同类型、规模企业的需求。组团内考虑产业、服务配套、租赁住房三项基本功能,精准提供生产生活“双配套”。

图9 典型组团功能布局示意图
组团内布局鼓励围合式,形成“向心式”的组团空间格局。街道界面整齐连续,面向中心集中布局文化休闲设施、广场与绿地,形成慢行优先、便于交流的场所。

图10 “向心式”的组团空间格局
组团之间沿陈家江河道与葑厚路林荫道形成活力水街、创新大街,强化联系度,形成串联产业组团的慢行系统。

图11 重点控制城市界面示意图
探索3:精准服务创新人才和居民的需求,形成产城融合的活力城区。
着重补齐南大地区在公共服务方面的短板,针对创新人才和居民的双重需求,提供高品质的公共服务和居住保障,使南大地区吸引人、留住人,构建合理的职住关系,成为辐射中心城西北的公共活动中心。

图12 公共服务设施分布示意图
针对满足创新人才需求的住宅产品供应,本次规划创新性地提出结合创新产业发展特点和人群多样化需求,并以组团为单位设置不同类型的租赁住房。租赁住房采用高强度、混合开发模式,灵活布局在产业组团内和轨交站点周边。在布局方式上,主要采用独立式和混合式。商品房配套同样考虑创新人才的需求,鼓励居住地块结合沿街底层空间配套品质提升类社区服务设施等,并结合人群特点进行设施的精准设置。

图13 住宅布局规划图
探索4:积极推动以人工智能为代表的前沿技术研发与应用,成为智能城市的先行典范。
抓住新一代信息技术的发展契机,积极推动以人工智能为代表的前沿技术研发与应用,以应用场景促进技术开发形成持续的创新动力,并探索人工智能城市建设与运营的技术框架,成为新兴技术的试验场和人工智能城市的先行典范。
规划提出建立智决策、全感知、趣体验的智能城市总体框架,打造用于信息存储、处理和分析决策的区域人工智脑,布局承载人、物、信息采集传送运输的基础设施,以及丰富市民生活体验的可亲近、可互动的末端应用。

图14 智能城市总体框架示意图
规划综合考虑社会示范性、空间可适应、技术可行性、经济可负担等原则,全面筛选了一系列适用的成熟项目。

图15 智能城市项目选择流程示意图
开发时序上,先期建设智能大脑数据中心、人工智能交流中心、孵化中心、体验中心,以及各项人工智能基础设施,形成智能城市的基础平台。

图16 智能城市基础平台布局规划图
空间布局上,重点打造两个示范组团及三条智能展示轴带,形成示范效应,全面推动地区的智能城市建设。

图17 智能示范组团公共服务中心构建示意图
四、结语和展望
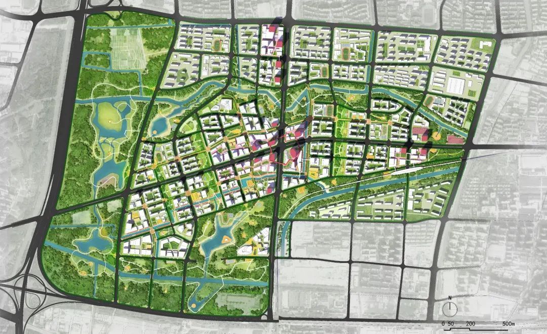
本次南大地区规划修编是在高质量发展的新时代背景下对城市建成区转型发展的探索,是一次生态环境和城市空间有机融合、新兴智慧创新产业和城区生活氛围高度复合,以及城市规划精细化管理模式的探索。从规划编制到规划落地,还有很长的路要走,需要紧密结合城市整体发展要求,充分对接地区建设实施,针对具体问题不断探索完善,才能逐步将南大地区打造成为“全市转型升级的示范区、高质量发展的示范区、卓越城区建设的示范区”。

图18 整体鸟瞰效果图
(来源:市规划院、作者:潘勋)