我的位置: 上观号 > 上海嘉定 > 文章详情

嘉定这里将新建道路及桥梁!

转自:上海嘉定 2022-02-12 18:13:11

最新消息!

嘉定工业区将新建道路及桥梁

未来出行更便捷~

详见↓

建设单位

上海嘉定工业区管理委员会

建设项目名称

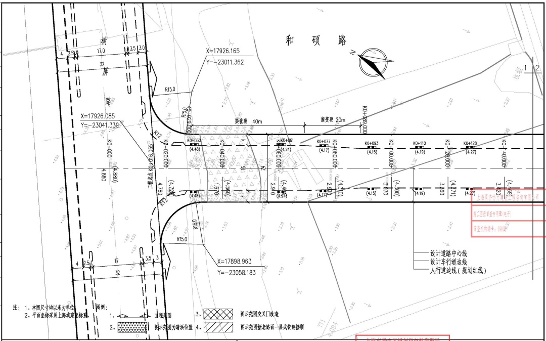
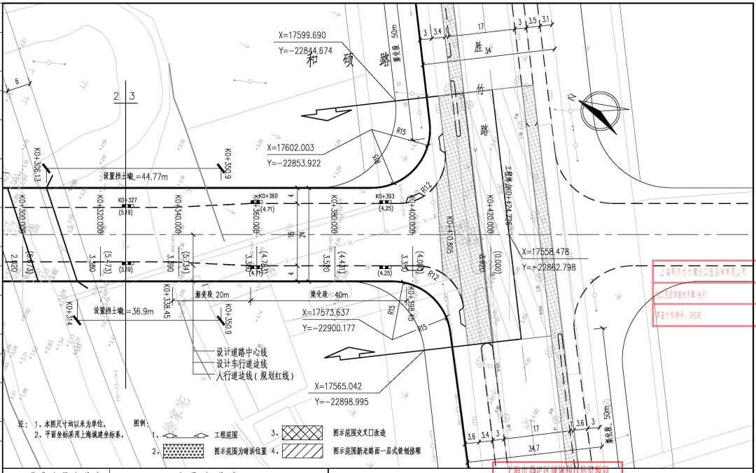
嘉定工业区和硕路(树屏路-胜竹路)

道路及桥梁新建工程

建设位置

嘉定工业区

东至道路红线,南至胜竹路

西至道路红线,北至树屏路

建设规模

新建道路全长424米,宽24米

新建桥梁1座,

跨径(10+13+10)米,宽24米。

通讯员:嘉小规

编辑:徐宇