我的位置: 上观号 > 上海规划资源 > 文章详情

【公示】惠南镇即将新建一条道路~

转自:上海规划资源 2022-01-27 17:18:16

惠南镇的小伙伴看过来~

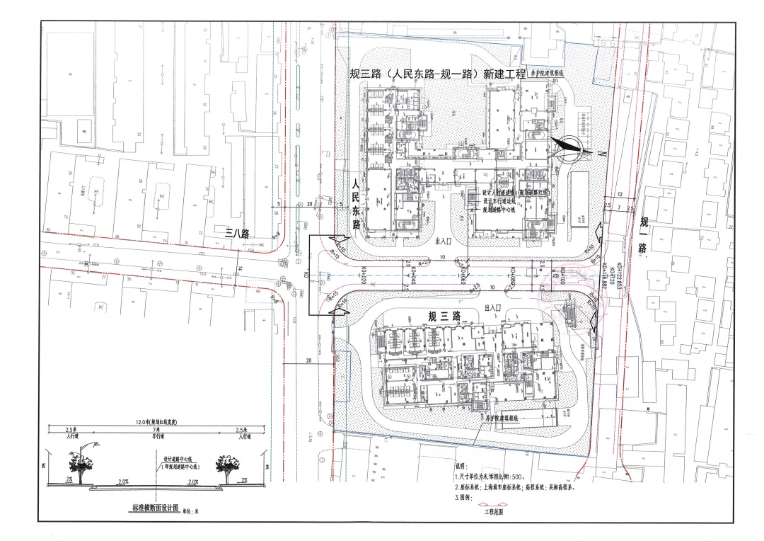
“惠南镇规三路(人民东路-规一路)

新建工程”

规划设计方案正在公示

一起来看~

建设单位:

上海市惠南镇人民政府

建设工程名称:

惠南镇规三路(人民东路-规一路)

新建工程

规划道路红线:

12米

道路等级:

城市支路

即将新建的规三路

将联系起人民东路和规一路。

附近居住的市民们出行更方便啦~

(来源:浦东新区规划资源局)