
“金色中环发展带”建设传来新消息
金桥美亚地块项目有新进展
一起来看详情↓

效果图
为落实政府政务公开的要求,进一步增强浦东新区城市规划管理工作的透明度,维护利害关系人的知情权,根据《 上海市建设工程设计方案规划公示规定》以及《关于进一步深化行政审批制度改革加快推进重大项目建设的若干措施》,现将金桥美亚地块项目建设工程设计方案向公众进行公示,并听取意见。
项目详情
建设单位名称
上海金桥(集团)有限公司
建设项目名称
金桥美亚地块项目
用地性质
商务办公住宅用地
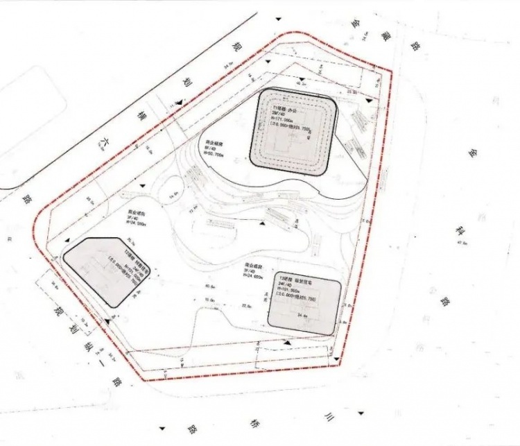
平面示意图

主要经济技术指标
用地面积:20573㎡
总建筑面积:191764㎡
其中,地上建筑面积:107046㎡(包括不计容面积4181㎡)
地下建筑面积:84718㎡
容积率:5.00
建筑高度:170.300m(T1塔楼 室外地面至幕墙顶)
机动车位数:850辆
该项目地上建筑包括一栋办公塔楼及裙房,两栋住宅塔楼及商业裙房。地下四层,功能为商业、大堂、车库及机房。
意见反馈
本次公示采用网上和现场公示听取公众意见
公示网址:
浦东新区规划和自然资源局官网
现场公示地址:
1.新金桥路27号14号楼上海金桥经济技术开发区管理委员会
2.项目现场围墙一金科路川桥路口以北约100米
3.佳林路655号金桥镇人民政府
反馈意见的信函请寄:浦东新区新金桥路27号14号楼,上海金桥经济技术开发区管委会行政审批服务处,邮编:201206,并在信函封面上注明:“项目公示意见”。
反馈意见截止日期:2021年12月19日,信件以寄出邮戳为准。
责任编辑 刘婉鑫
来源 浦东发布