日前,小嘉从相关部门获悉,海螺创业嘉定总部项目建设工程规划方案正式出炉,详见↓

建设单位(个人)
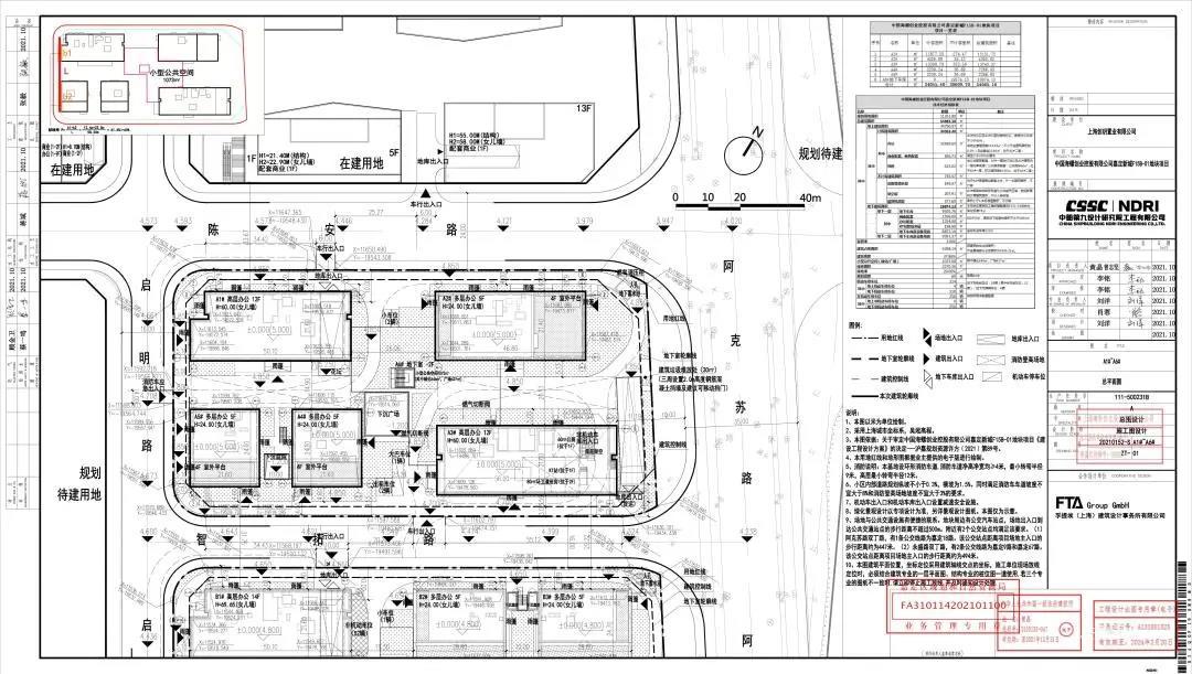
上海创玥置业有限公司
建设项目名称
中国海螺创业控股有限公司嘉定新城F15B-01地块项目
建设位置
嘉定区马陆镇,东至阿克苏路,南至智拓路,西至启明路,北至陈安路。

建设规模
总建筑面积54665.1平方米(其中地下建筑面积19874.13平方米),计容建筑面积34055.4平方米。
主要经济技术指标

中国海螺创业控股有限公司于2013年注册成立,是一家专业从事节能环保“一揽子”解决方案的企业集团。2020年度,海螺创业收入66.05亿元,合并总资产约为543.28亿元,连续四年入围中国上市公司市值500强榜单。

海螺创业嘉定总部项目位于嘉定新城核心区,项目总占地面积约38.6亩,分南北两个地块(中间由智拓路相隔),总投资约22.6亿元,共建设4栋独栋高层、7栋独栋多层,主要用于商务办公。海螺创业嘉定总部项目是“十四五”时期嘉定新城规划建设的重点项目之一,将成为推动核心区产城融合、塑造城市形象风貌的重要空间载体,计划2023年12月竣工。
项目建成运营后,中国海螺创业控股有限公司总部将由芜湖迁至上海,未来公司将努力把上海总部打造成集团的“五中心、一平台”,即总部功能中心、双碳研发中心、金融投资中心、运营管理中心、文化展示中心和国际化运营平台。

海螺创业作为国内环保业的领军企业,在环保项目的投资研发、人才运营管理等方面具有丰富的经验和优势,海螺创业将以此次建设嘉定总部为契机,逐步将公司及关联企业核心业务功能板块落地嘉定新城。目前,超过10家海螺创业下属子公司及关联企业新注册或迁移至嘉定,累计缴纳税收超过7700万元。