金山工业园区(山阳)
CB_200803001-2号地块 项目方案公示
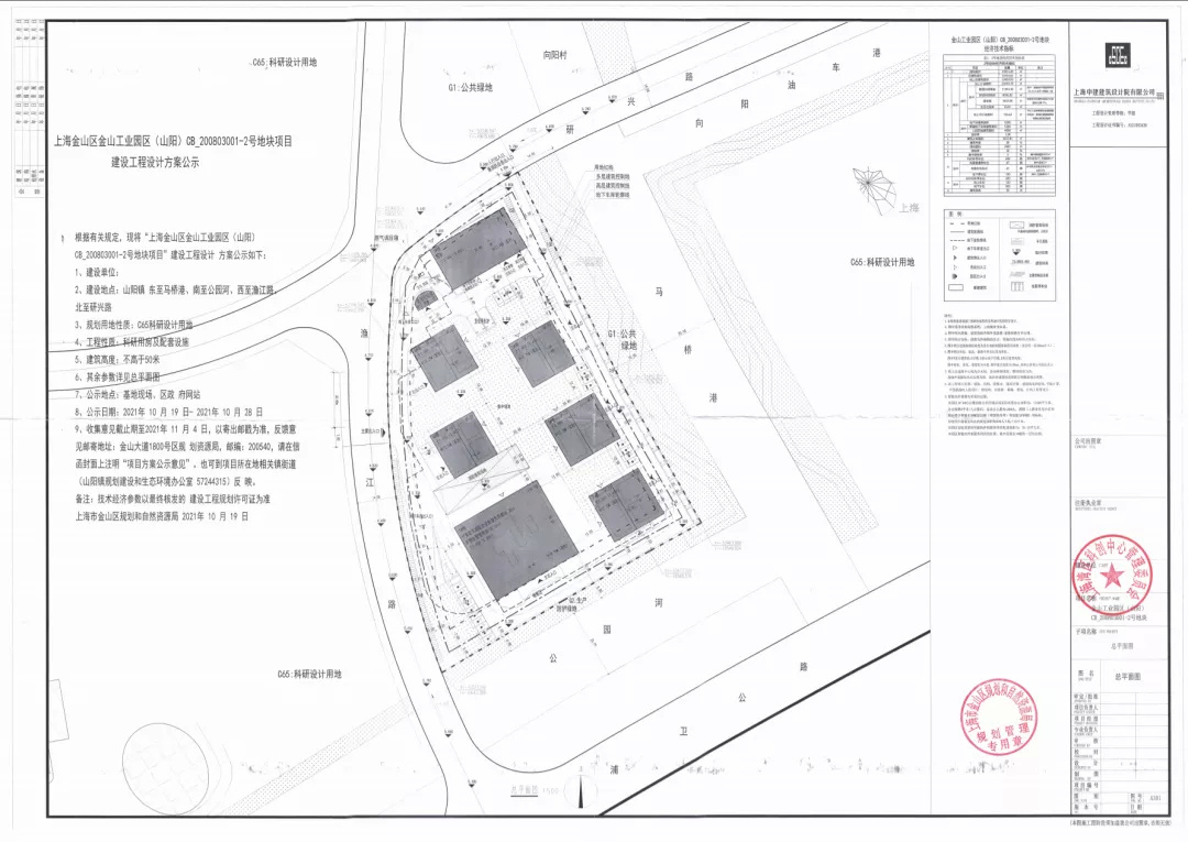
根据有关规定,现将 “金山工业园区(山阳)CB_200803001-2号地块项目”建设工程设计方案公示如下:
1、建设地点:山阳镇,东至马桥港、南至公园河、西至渔江路、北至研兴路。
2、规划用地性质:科研设计用地。
3、工程性质:科研用房及配套设施。
4、建筑高度:不高于50米
5、其余参数详见总平面图
6、公示地点:基地现场、金山区政府网站
7、公示期限:2021年10月19日-2021年10月28日
8、收集意见截止期至2021年11月4日,以寄出邮戳为准,反馈意见邮寄地址:金山大道1800号区规划资源局,邮编:200540,请在信函封面上注明“项目方案公示意见”。也可到项目所在地相关镇、街道(山阳镇)反映。
备注:技术经济参数以最终核发的建设工程规划许可证为准

(点击阅读原文可查看大图)
资料:金山区规划和自然资源局
编辑 | 俞萝寅
责编 | 陈忆文