好消息
浦东新区曹路镇拟新建
总建筑面积约156000㎡的保障房项目
更多该项目的规划设计方案
一起来了解吧

“浦东新区‘十二五’保障房
曹路基地20-01项目”规划设计方案
建设单位名称
上海申悦房地产开发有限公司
建设项目名称
浦东新区“十二五”保障房曹路基地20-01项目
项目公示图

● 建设用地范围
项目位于上海市浦东新区曹路镇,地块:
▷ 东至季家沟
▷ 南至季家沟
▷ 西至金拓路
▷ 北至海鸣路

主要经济技术指标
用地面积:30833.3平方米
总建筑面积:89239.35平方米
其中,地上建筑面积:64766.35平方米
地下建筑面积:24473平方米
容积率:2.0
绿地率:35.0%
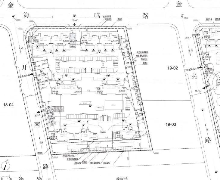
“浦东新区‘十二五’保障房
曹路基地19-01项目”规划设计方案
建设单位名称
上海申悦房地产开发有限公司
建设项目名称
浦东新区“十二五”保障房曹路基地19-01项目
项目公示图

●建设用地范围
项目位于上海市浦东新区曹路镇,地块:
▷ 东至金拓路
▷ 南至季家沟
▷ 西至金开南路
▷ 北至海鸣路

主要经济技术指标
用地面积:23040平方米
总建筑面积:66760.59平方米
其中,地上建筑面积:48428.59平方米
地下建筑面积:18332平方米
容积率:2.0
绿地率:35.0%
公示详情
反馈意见截止日期:2021年10月14日前,信件以寄出邮戳为准。
公示采取网上和现场同步公示的方式
现场公示地址:曹路镇人民政府、海鸣路金拓路交叉口围墙、海鸣路金开南路交叉口围墙
公示网址:http://www.pudong.gov.cn/gtj/
本次公示采取书面信函方式听取公众意见
反馈意见的邮寄地址:浦东新区新金桥路27号14号楼(上海金桥经济技术开发区管委会行政审批服务处),邮编:201206,并在信函封面上注明“项目公示意见”。
责任编辑 刘婉鑫
来源 浦东发布