北蔡的小伙伴注意啦~
您家附近即将新建一条道路
——艾南路(新浦路-新浦路),
相关详情一起来看~
艾南路(新浦路-新浦路)新建工程
建设单位名称
上海北蔡新城镇开发有限公司
项目介绍
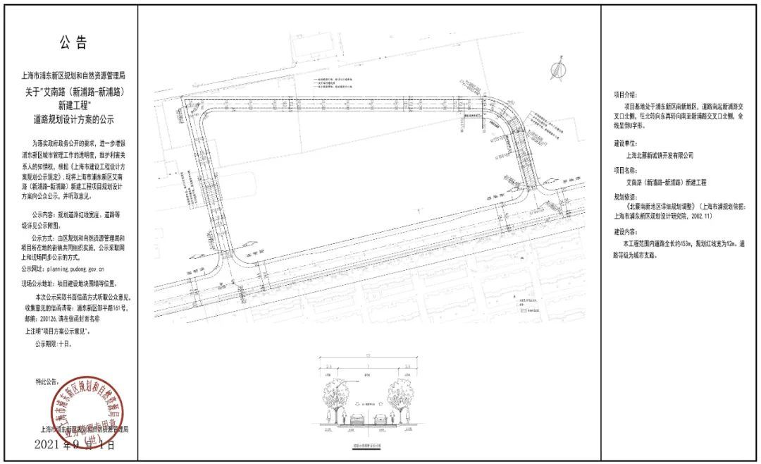
项目基地处于浦东新区北蔡南新地区,道路南起新浦路交叉口北侧,往北转向东再转向南至新浦路交叉口北侧,全线呈倒U字型。

△公示图
建设内容
本工程范围内道路全长约453米,规划红线宽为12米。道路等级为城市支路。
效果图


艾南路(新浦路-新浦路)
新建工程位于北蔡南新地区,
道路建成后,
将进一步为附近居民
提供出行便利~
(来源:浦东新区规划资源局)