记者近日从新虹街道获悉,与大虹桥的国家会展中心仅一路之隔的红星村动迁安置房项目,项目主体结构内外装饰完成,目前处于室外总体施工阶段,计划于9月份竣工、11月份交付动迁居民。

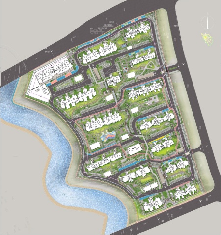
据介绍,红星村动迁安置房项目位于崧泽高架北面,西侧小涞港,北侧兴虹西路,东侧华涞路,南侧龙联路,占地面积69494.6平方米,总建筑面积约21万平方米,总户数1576户。项目利用现代社区规划理念,构筑完整的社区系统,并利用社区中心广场、绿地景观来塑造社区的多样化氛围和提高社区活力。

项目鸟瞰图
“预计年底住户可以入住新房”,新虹街道相关负责人介绍,红星村动迁安置房项目通过向社会征集并命名为“涞港星苑”,规划住宅以15层高层为主。动迁安置房参考商品小区标准设计,建成后将显著提升新虹街道居民的居住品质。

单体建筑外立面

电梯厅效果图
记者在现场看到,小区楼间距开阔,立面简洁气派,工人们正在进行室外施工,接下来,施工方将抓紧房屋装饰工程、市政、水电煤、绿化等配套工程的进度,确保项目顺利竣工。

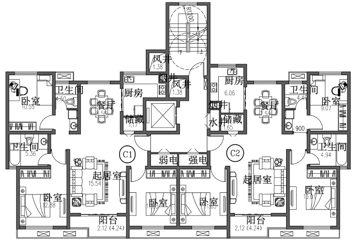
建成后,该项目可安置红星村、新家弄村、陶家角村、范巷村等多个村级组织近500户居民。房型为一房一厅、二房二厅、三房二厅等,单套房屋建筑面积在59平方米至132平方米不等。设置机动车停车位1598个、配套一个社区服务中心,为居民生活提供便利。

一房一厅一卫A房型效果图

二房二厅一卫B房型效果图

三室二厅二卫C房型效果图
绿化景观方面,考虑到社区临近小涞港生态走廊,结合中心绿地作为整个环境系统的组织轴线,形成收放有致,和谐有序的绿化系统;设置道路绿化、庭院绿地、儿童活动场地、邻里互动空间、室外庭院、健身跑道形成多元化景观类型。

中轴景观带效果图

组团绿化效果图

小区中心区位形成总长600米的慢跑环路效果图

夜景灯光主要以庭院灯、草坪灯为主

夜景效果图
周边一共规划了三条道路,北侧为兴虹西路、东侧为华涞路、南侧为龙联东路。龙联路桥和兴虹西路桥也将建设起来。该负责人介绍,“在保障房交付的时候,预计会有华涞路北向出口和龙联东路西向出口这两处外部通道,基本上能够满足动迁回搬户的日常生活之用。”

另据悉,红星村商业配套项目占地面积19937平方米,总建筑面积约7.7万平方米,该地块规划酒店、商业、公共服务设施等产品,并设有多种业态。

配套商业项目效果图
红星村“城中村”项目改造完成后,将建设成一个现代时尚,突出商业配套、生活宜居、民生保障三大功能,具有多样性、和谐、节能省地型的现代化居住社区。
(注:以上项目效果图请以实际为准)
记者:毛海萍
通讯员:筑梦新虹
编辑:毛海萍
转载请注明来自今日闵行官方微信
