速看!
嘉定又有既有多层住宅加装电梯啦
规划设计方案正在公示
快来一探究竟~
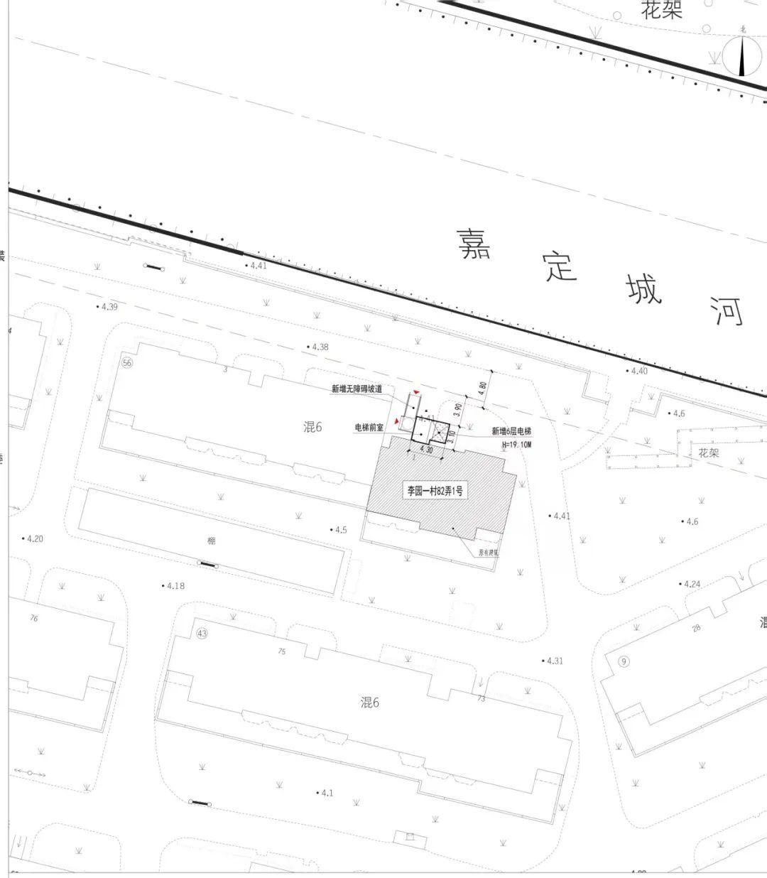
上海市嘉定区金沙路82弄1号楼
既有多层住宅加装电梯项目
建设单位
上海市嘉定区李园一村第八届业主委员会
建设项目地址
上海市嘉定区李园一村82弄1号单元楼

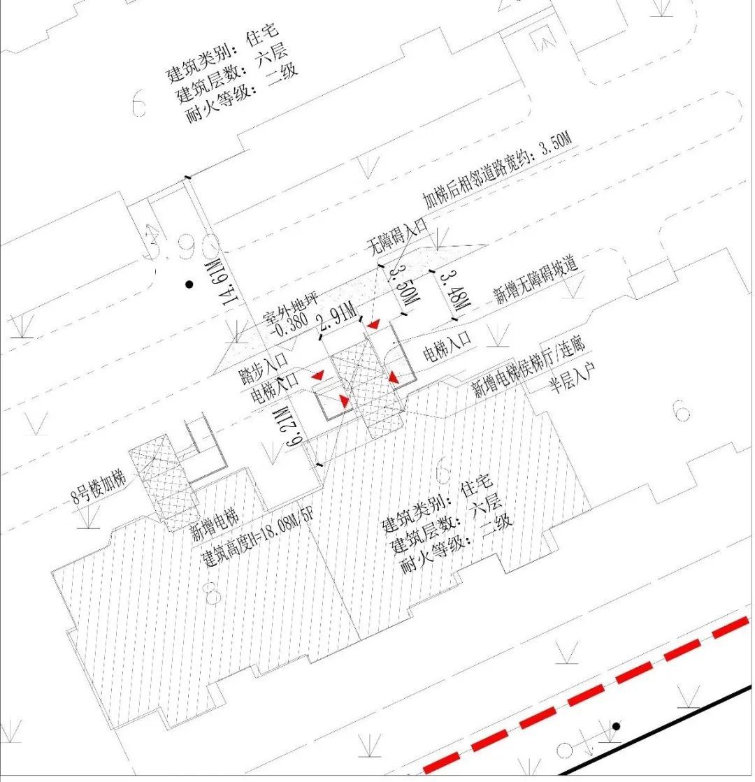
平面图
建设用地范围
上海市嘉定区李园一村82弄1号单元楼楼梯间北侧
用地性质
居住用地

效果图
建设工程性质
加装电梯项目
建筑面积
66.44平方米
上海市嘉定区福海路1028弄7号
加装电梯项目
建设单位
上海市嘉定区叶城三街坊第五届业主委员会
建设项目地址
上海市嘉定区福海路1028弄7号

用地性质
居住用地

效果图
建设工程性质
加装电梯项目
建筑面积
74.30平方米
来源:嘉小规
编辑:袁悦
喜欢就点个“赞”和“在看”吧~↓↓↓↓