我的位置: 上观号 > 上海嘉定 > 文章详情

嘉定新城将新建一栋办公楼!详见→

转自:上海嘉定 2025-01-13 16:05:17

@嘉定的小伙伴

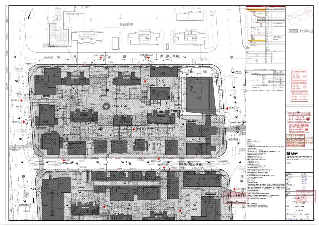
嘉定这个地块项目

建设工程规划许可证已公布

建设单位(个人)

上海嘉未来置业有限公司

建设项目名称

嘉定未来城市E19A-1、E19B-1地块项目

E19A-1地块T22号楼

建设位置

嘉定区马陆镇
东至合作路、西至云谷路
南至双单路、北至丁单路(德茂路)

建设规模

总建筑面积23282.7平方米

地上计容建筑面积22802.41平方米

商业建筑面积1047.23平方米

办公建筑面积21755.18平方米

备注:地上不计容面积为屋顶机房层(小于屋顶面积的1/8)及首层架空层

通讯员:小规
编辑:卓明霞

喜欢就点个“赞”和“在看”吧~