
△ 长安泾水岸景观
长三角G60科创之眼
——
“长三角G60科创之眼”坐落于国道G60、G15交汇处,毗邻虹桥及松江兩大交通枢纽,是上海汇通长三角的重要节点。09-04地块位于区域的中心位置,设计融入了绿色开放、智能创新、双碳减排的核心理念,力图打造一个以人为本、面向未来的新一代建筑环境;集合商务会展和科研办公等功能,将成为推进“长三角G60科创之眼”片区发展的核心引擎。
01
项目区位

项目场地位于科创之眼片区核心位置,向东连接G60科创云廊,向西连接全新开发的长三角G60科创之眼片区。基地东北面对繁忙的城市路口,西南面临滨水的河湾绿地,成为面向全片区开放的绿色公园广场。设计将建筑形体东西分立为城市创造一个友好的入口,将自然绿化引入城市轴线,进而进入整片科创新城。

△ 联松路城市门户夜景
02
建筑形体与片区门户
建筑形体回应片区总体规划,分为东西两栋主体塔楼,向北迎接城市绿轴。面对基地东北角繁忙的城市路口,建筑形体在北端形成较高的体量塑造城市形象,向南通过分层退台的建筑形态,朝向水岸展开绿色的南向露台,营造亲和自然的空间感。最后打造与流畅建筑形体相衬的流线型景观空间,将建筑与景观融合成一个整体的绿色城市公园。

△ 建筑形体生成:总图/ 朝向/ 形体/ 景观

△ 如水岸流石堆叠雕鑿构成建筑形体
建筑形体塑形圆润,取意水岸流石如蝶翼并合,与片区化茧成蝶迎向新生的总体规划概念相呼应。园区空间与蜿蜒流淌的长安泾有机交融,共同塑造流畅写意的景观环境。两座塔楼并立,形成引领人们通往绿意的门户。让园区成为一座开放的公园、一个适合相遇和交流的公共空间,用绿色和自然的体验定义迎向水岸的城市节点。

△ 圆滑曲线元素从城市空间流畅的过渡到自然水岸
03
室内空间
圆润的外型流淌进入室内门厅,涟猗般的二层退台呼应水岸场所特色,造就高敞明亮的大堂空间,引导访客到达首层的各种开放交流功能。圆润的空间感受为首层内部高度弹性的展示、交流、开放办公功能定下流动自由的空间基调,形成项目的独特空间体验。

△ 塔楼入口门厅
平面布局配合建筑形体,将交通核偏心布置,打造开敞的办公空间。工作区域朝向南侧水岸,尽享绿色辽阔景观。上下层之间藉由室内中庭开敞楼梯连接,增进企业内部交流互动。精心打造的天窗将阳光带进室内,点亮社群的向心氛围。

△ 裙楼中庭天窗
04
可持续建筑表皮
立面设计旨在烘托圆润流畅的建筑形体,塑造轻盈精巧的建筑质感,并使两栋塔楼在外部达成形式的统一,从而彰显精致理性的科创形象。幕墙穿孔铝板内推形成退缩的可开启扇。与立面玻璃共同包裹建筑体量,并随视角推移在立面上呈现多变的光影变化。立面虚实材料结合日照朝向和平面功能布置,整体的窗墙比达到55%,营造舒适节能的可持续办公空间。屋顶光伏板和造形格栅结合,塑造精致项目形象。建筑与自然和谐共生,实现以人为本,人、建筑、自然三者和谐统一。

△ 建筑立面与造形设计结合景观创造独特园区空间

△ 总平面图

△ 科研片区中的绿色城市节点
05
立面细节
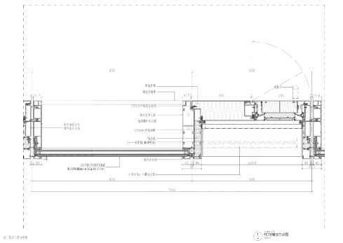
建筑立面图案由模块化的开启扇错位构成,淡化楼层之间的分隔,并以抽象的形态变化引领空间流动。单元式幕墙节点设计克服立面进深变化的挑战,实现高精度立面建造质量。每个单元宽1400mm,冲孔板与玻璃的尺寸从300mm到700mm,形成五种基本的模数变化,实现立面渐变效果的同时,更保证了可控的建设费用与建成效果。

△ 幕墙模数系统

△ 幕墙模数与渐变的外观效果
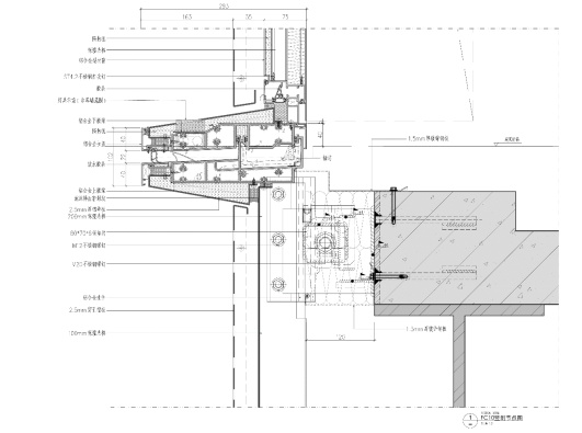
细部节点设计除了实现立面的凹凸进退,为建筑的外观创造深度之馀,还整合自然通风换气与外观照明等功能性要求。为室内提供舒适的自然换气条件,并在建筑的各个方向创造了不同的立面表情的同时,形成科创片区核心灵动耀眼的建筑地标。


△ 幕墙节点

△ 鸟瞰夜景动画
(来源:松江区规划资源局)